view barn conversions view house extensions LOFTS CONSERVATORIES RENEWABLES LISTED COMMERCIAL SERVICES follow us on Facebook PROJECTS NEWS LINKS CONTACT follow us on Instagram give us a call latest news helpful links get in touch DOMESTIC
before and after extension
before and after extension

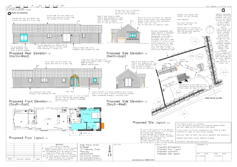
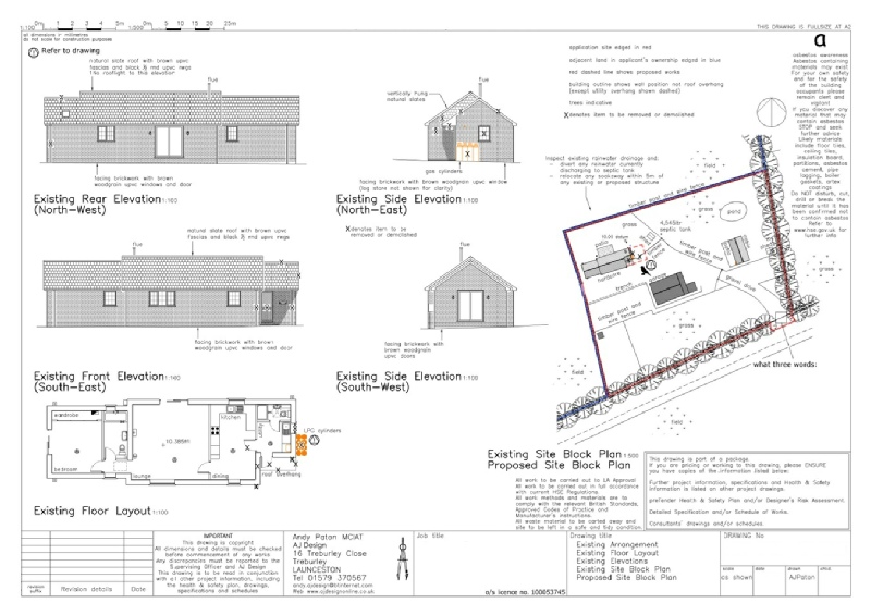
Extension South East Cornwall

before and after extension view our projects visit LABC site visit CIAT site visit HAAS site view our commercial projects view our domestic projects follow us on Instagram follow us on Facebook visit LABC site visit CIAT site visit HAAS site AJ Design - Home

AJ Design

view conservatories and summer houses view barn conversions view house extensions view listed buildings view renewables view lofts view our services view image view image view image view image view image view image view image view image